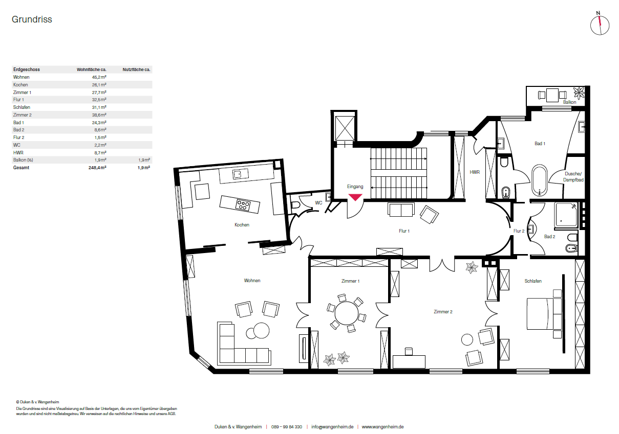
Mitten im begehrten Schwabing, nur wenige Gehminuten vom Josephsplatz entfernt – wo sich die Nachbarschaft beim wöchentlichen Bauernmarkt mit regionalen Köstlichkeiten trifft – befindet sich diese außergewöhnliche 4-Zimmer-Wohnung. Sie liegt im 3. Obergeschoss eines 1912 errichteten Stadthauses und verbindet den Charme einer vergangenen Epoche mit gehobenem Wohnkomfort. Bereits beim Betreten des großzügigen Flurs entfaltet sich der unverwechselbare Altbaucharme. Die weitläufige Diele im klassizistischen Jugendstil bildet das Herzstück der Wohnung und schafft einen repräsentativen Empfang für Gäste. Von hier aus öffnen sich die weiteren Räume auf insgesamt 248 m² – angeordnet in harmonischer Abfolge. Das nach Südwesten ausgerichtete Wohnzimmer wird bis in die Abendstunden von warmem Sonnenlicht durchflutet. Edles Fischgrätparkett aus Echtholz, Kassettenfenster mit geschwungenem Giebel und feiner Sprossenverglasung verleihen dem Raum einen Hauch zeitloser Eleganz. Zusammen mit dem prachtvollen Stuck an den über drei Meter hohen Decken entsteht ein Wohnambiente, das an die glanzvolle Münchner Baukultur der Jahrhundertwende erinnert. Typisch für diese Bauweise reihen sich Wohnzimmer, Esszimmer, Arbeitszimmer und Schlafzimmer wie Perlen aneinander. Das Arbeitszimmer lässt sich flexibel als Kinder- oder Gästezimmer nutzen. Verbunden werden die Räume durch hohe Flügeltüren – teils mit satiniertem Glas, teils aus massivem Holz –, die der Wohnung eine durchgehende Raumflucht, Großzügigkeit und Leichtigkeit verleihen. Der Blick auf die grüne Allee der ruhigen Agnesstraße lädt zum Innehalten ein. Das luxuriöse Badezimmer bietet eine Badewanne mit Ausblick, ein Dampfbad sowie ausreichend Platz für entspannende Wellnessmomente. Ein Balkon auf der Rückseite des Hauses mit Blick in den grünen Innenhof ist ein idealer Ort für gemeinsame Abende im Freien. Komplettiert wird dieses seltene Angebot durch einen Aufzug und einen Tiefgaragenstellplatz in unmittelbarer Nähe. Ein stilvoller Rückzugsort im westlichen Schwabing – umgeben von historischen Stadtvillen, charmanten Cafés und einer Nachbarschaft, die Lebensqualität auf höchstem Niveau verkörpert.
- Schwabing
- Altbau-Wohnung
Zeitlose Eleganz. Großzügige Altbauwohnung in Jugendstil-Palais.
3.800.000 €
Kaufpreis
248 m²
Wohnfläche
4
Zimmer
Eckdaten
- Objektnummer1753
- ImmobilientypAltbau-Wohnung
- Baujahr1912
- Zimmer4
- AufzugJa
- Zustandgepflegt
- Verfügbarnach Vereinbarung
Flächen
- Wohnflächeca. 248 m2
Kaufpreis
- Preis3.800.000 €
- Stellplatz50.000 €
- Käuferprovision3,57 % inkl. gesetzlicher MwSt.
- ProvisionshinweisIm Falle des Abschlusses eines Kaufvertrages zu vorgenanntem Objekt ist eine Käuferprovision i.H.v. 3,57 % inkl. 19 % gesetzl. Mehrwertsteuer aus dem notariell verbrieften Kaufpreis fällig. Im Anwendungsbereich der §§ 656a ff. BGB ist die Höhe der Käuferprovision jedoch begrenzt durch die vom Verkäufer zu leistende Provision. Die Entrichtung der Provision wird im Kaufvertrag geregelt.
Lage-Informationen
Willkommen in einer der begehrtesten Adressen Münchens: Die Tengstraße liegt mitten im charmanten Schwabing – einem Stadtteil, der seit jeher für seine lebendige Kultur, exklusive Wohnatmosphäre und einzigartige Lebensqualität bekannt ist. Hier verbinden sich historische Altbauten, ruhige, baumbestandene Straßen und ein urbanes Lebensgefühl auf besondere Weise. In unmittelbarer Nähe finden Sie eine Vielzahl an kleinen Boutiquen, erstklassigen Restaurants, eleganten Cafés und charmanten Feinkostläden. Die Nähe zur Ludwigstraße, dem Englischen Garten und den kulturellen Highlights wie den Museen und Galerien macht diese Lage besonders attraktiv. Trotz der zentralen Citylage genießen Sie hier eine entspannte, fast dörfliche Wohnatmosphäre. Exklusive Schulen, renommierte Kindergärten und eine hervorragende Verkehrsanbindung unterstreichen die Attraktivität für junge Familien ebenso wie für Paare, die das Besondere suchen. Schwabing bietet ein harmonisches Zusammenspiel aus Tradition und modernem Lifestyle – ein Quartier, das inspiriert und zum Verweilen einlädt. Hier wohnen Sie mitten im Herzen Münchens – elegant, stilvoll und mit höchster Lebensqualität.
Verkehrsanbindung
- ca. 500 Meter, ca. 7 Gehminuten
- ca. 450 Meter, ca. 7 Gehminuten
- ca. 350 Meter, ca. 6 Gehminuten
- ca. 2,5 km, ca. 10 Autominuten, ca. 10 Minunten mit der Bahn
- ca. 4,1km,ca. 11 Autominuten
- ca. 31km, ca. 30 Autominuten
Karte
Highlights
- Repräsentatives, historisches Gebäude mit eindrucksvollem, großzügigen Treppenhaus
- großzügige Raumhöhen
- Fischgrät-Eichenparkettboden
- Originale Stuckdecken
- Originale Kassettenfenster mit geschwungenem Giebel
- Großzügiger heller Wohnbereich mit ca. 45 m²
- Balkon in den ruhigen grünen Innenhof
- Zimmer als Arbeits-/Musik-/Gästezimmer
- ein Tiefgaragenstellplatz in der Agnesstraße
Video
Grundrisse
© Duken & v. Wangenheim
Die Grundrisse sind eine Visualisierung auf Basis der Unterlagen, die uns vom Eigentümer übergeben wurden und sind nicht maßstabsgetreu. Wir verweisen auf die rechtlichen Hinweise und unsere AGB.
Energieausweis
Denkmal, energieausweisbefreit.
Sämtliche Bilder und graphische Darstellungen sind Eigentum von Duken & v. Wangenheim und dürfen nicht durch bzw. an Dritte verwendet oder weitergegeben werden.
Ähnliche Immobilien
Newsletter abonnieren
Abonnieren Sie die neuesten Nachrichten zum Münchner Immobilienmarkt in Ihrem Posteingang.
Abonnieren

























